Èùèòå áðèãàäó? Íóæíî ïîñòðîèòü èëè îòðåìîíòèðîâàòü? Äåëàåì ÂÑÅ êà÷åñòâåííî è áûñòðî. Áîëüøîé îïûò ðàáîò. Ðàáîòà, ýòî ðàçäåë, ãäå ðàçìåùåíû ôîòîãðàôèè, ÷åðòåæè, ýñêèçû, âèçóàëèçàöèè ðåàëüíûõ çàêàçîâ, êîòîðûå áûëè íàì ïîðó÷åíû. Ýòî íå âñå. Ïîëíûé ñïèñîê è áîëüøå ìàòåðèàëîâ åñòü ó íàøåãî óïðàâëÿþùåãî.



����:
�������

������

���� ��������

�������

����

������ PNVTEAM

��������

������������ ����������

�������� �������� �����
�������������� ������������
�������� �������������
������������ �����

���������
������ ��� �������

���������� ������
����� ���������
��� ����

���������
�������

������������� ��������, �������, ������������������ ������

���������
��������� ���

������������� ���� �� �������, ��������� ��������, ��������,
����� 55-70��

���������
��� �� ��������� ����������

������������� ���� �� ������, ��������� ����������� �����

���������
������������� �����

������������� �����,
���� �� ������� ��� ������

���������


�� ����������:
��������� ��� |��������� ��� |��������� ��� |������������� �����, ���� |�����, �������� |������������� �������� |������������ |������, ������� |��������������, ������ |������� ������� |���������� ��� |����������� ��� |������������ ���������� |������������� ���������� |������ ������ |������� |

Translate this page


������ �����
������������ |������ |�������� |������ |������������� |���������������� ������ |������������� |���������� ������ |���������� ������������ |��������� |���������� |��������� |����������� ������ |������������� ���� |������������� ����� |������� ������� |������������ ������ ��� �������� |����� � ������������ |���������� ������� |������ ��������� |������������ �������� ������������ ��������� |������/������������� ��������� |����������� ����������� |��������� ������� |�������������� � ��������� ��������� ������� |������ ������� |����������� ���������� ���� |������������ � ������ �������� |�������� ����������� |������� ������ |������������� ����, �������� |����� ������ |������� �������� |������ |����������������� ��� |������ ��������������� |�������������� ��� ��������� |������ ���� |��� � ��������� |��������� ����������� |��������� ��� |������������ ������� |���� ������� ���������� |����� ��� �������� |������������ ������ |������� �������� |��������� ������� |������ �������� |������� ���������� � ��������� ������� ���� |������� ����������� |������� ���������� |������������ ������� |��������� ������� |������� ����������� |������� ������� |������� ���������� |���������� � �������� |������� ��������� |������ ������� |������� |��� VIP �������� |������������ |������ ��� ���� |������������� ��� ���� |�������������� |�������� |������ ��������� |���������� |����� ������ |

�� ����� �����!

������ ��� ����� ����� � ���������� ����� � ��������:

�� ������ �������� �� ��� ���� �������.

������� / ���� �������� / ��� ���� ����� 3
��� ���� ����� 3
������ ��� ������
Êîìíàòà
�������

�������


Êîìíàòà
�������

�������


Êîìíàòà
�������

�������


Êîìíàòà
�������

�������


Êîìíàòà
�������

�������


Êîìíàòà
�������

�������


Êîòåë
�����
���������� ���������

�����


Êîòåë
�����

�����


Êîëëåêòîð è ðàäèàòîð îòîïëåíèÿ
��������� � �������� ���������

��������� � �������� ���������


Êîëëåòîð
��������

��������


Åë.ùèò
��.���

��.���


Ñ÷åò÷èê è ôèëüòð
������� � ������

������� � ������


Ïðèõîæàÿ
��������

��������


Ïðèõîæàÿ
��������

��������


Ñàíóçåë
�������

�������


Ñàíóçåë
�������

�������


Ñàíóçåë
�������

�������


Ñàíóçåë
�������

�������


Ñàíóçåë
�������

�������


Ñàíóçåë
�������

�������


Ñàíóçåë
�������

�������


Êóõíÿ
�����

�����


Êóõíÿ
�����

�����


Êóõíÿ
�����

�����


Êóõíÿ
�����

�����


Êóõíÿ
�����

�����


Êóõíÿ
�����

�����

 

Ãîòîâíîñòü 100%
���������� 100%

��������� ��� 2008 ����, ������� "��������", ��������� �� ��������� (������), ��������� �������, �������� � �������� ��������� ������ - �����. ���� ������ 2010 ���.


���������� 100%


Ãîòîâíîñòü 100%
���������� 100%
��������� ���

���������� 100%


Äîì êàðêàñíûé
��� ���������

��� ���������


Ãîòîâûé äîì
������� ���

������� ���


Ïîñòðîåííûé äîì
����������� ���

����������� ���


Ïîñòðîåííûé äîì
����������� ���

����������� ���


Ïîñòðîåííûé äîì
����������� ���

����������� ���


Ïîñòðîåííûé äîì
����������� ���

����������� ���


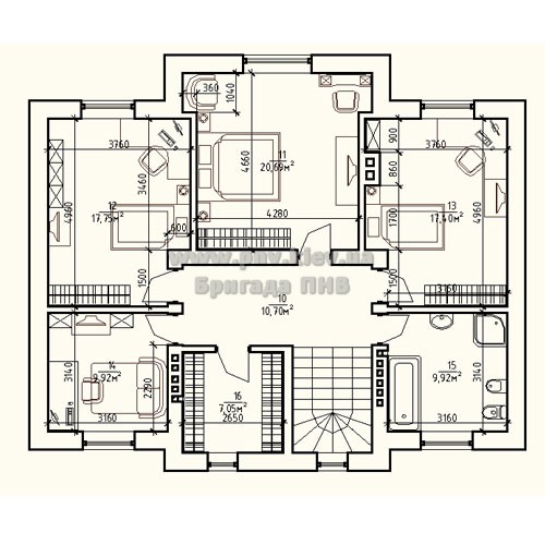
Ïëàí 2 äîìà
���� 2 ����

���� 2 ����


Ïëàí äîìà
���� ����

���� ����


Ãîñòèíàÿ
��������

��������


Ãîñòèíàÿ
��������

��������


Ãåíïëàí
�������

�������


Îòäåëêà êóõíÿ
������� �����
������� ����

������� �����


Îòäåëêà öîêîëü
������� ������

������� ������


Îòäåëêà öîêîëü
������� ������

������� ������


Âèçóàëèçàöèÿ âàðèàíò
������������ �������

������������ �������


Âèçóàëèçàöèÿ
������������

������������


Âèçóàëèçàöèÿ
������������

������������


Âèçóàëèçàöèÿ
������������

������������


Âèçóàëèçàöèÿ
������������

������������


Âèçóàëèçàöèÿ
������������

������������

 

Ïîñòðîåííàÿ êîðîáêà
����������� �������

����������� �������


Âèçóàëèçàöèÿ ñ ôàñàäíûì êèðïè÷åì
������������ � �������� ��������

������������ � �������� ��������


Âèçóàëèçàöèÿ
������������

������������


Âèçóàëèçàöèÿ
������������

������������


Âèçóàëèçàöèÿ
������������

������������


Âèçóàëèçàöèÿ
������������

������������


Ðàçðåç
������

������


Ôàñàä
�����

�����


Ôàñàä
�����

�����


Ïëàí 2 ýòàæ
���� 2 ����

���� 2 ����


Ïëàí 1 ýòàæ
���� 1 ����

���� 1 ����


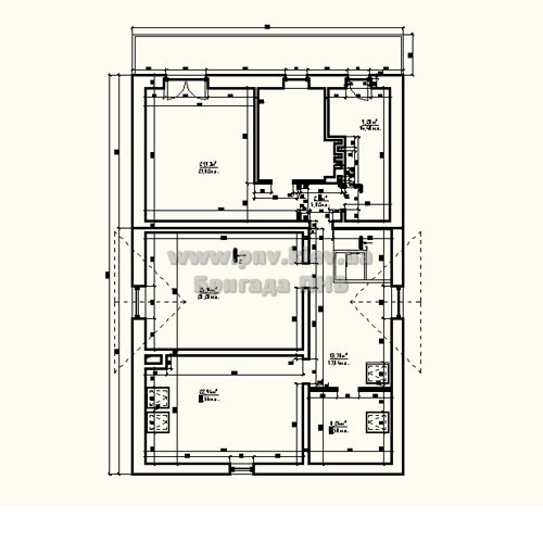
Ïëàí öîêîëüíîãî ýòàæà
���� ���������� �����

���� ���������� �����


Ãåíïëàí
�������

�������

 

Êîìíàòà
�������

�������


Êóõíÿ
�����

�����


Êóõíÿ
�����

�����


Òóàëåò
������

������


Âàííà
�����

�����


Ïðèõîæàÿ
��������

��������


Ïëàí ñ ìåáåëüþ è ýëåêòðèêîé
���� � ������� � ����������

���� � ������� � ����������


Ïëàí ïåðåïëàíèðîâêè
���� ��������������

���� ��������������


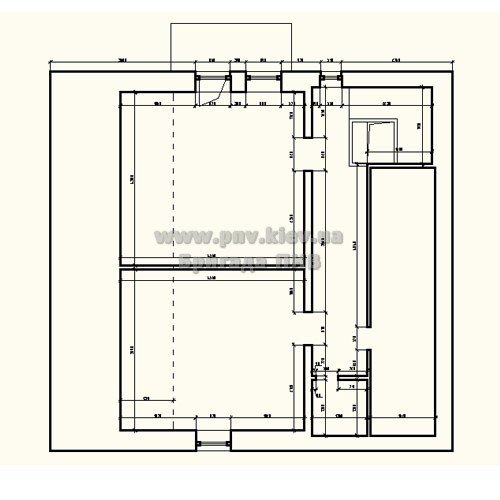
Ïëàí äî ðåìíîòà
���� �� �������

���� �� �������

Êîòåëüíàÿ
���������

���������


Êîòåëüíàÿ
���������

���������


Êîòåëüíàÿ
���������

���������


Êîòåëüíàÿ
���������

���������


Êîòåëüíàÿ
���������

���������


Êîòåëüíàÿ
���������

���������


Êîòåëüíàÿ
���������

���������


Êðîâëÿ
������

������


Ðàçðåç
������

������


Ñòàëî 2 ýòàæ
����� 2 ����

����� 2 ����


Ñòàëî 1 ýòàæ
����� 1 ����

����� 1 ����


Áûëî
����

����


Áûëî
����

����


Ïîñòðîåí 2 ýòàæ è ïðèñòðîåíî 50% äîìà
�������� 2 ���� � ���������� 50% ����

�������� 2 ���� � ���������� 50% ����


Ïîñòðîåí 2 ýòàæ è ïðèñòðîåíî 50% äîìà
�������� 2 ���� � ���������� 50% ����

�������� 2 ���� � ���������� 50% ����


Ïîñòðîåí 2 ýòàæ è ïðèñòðîåíî 50% äîìà
�������� 2 ���� � ���������� 50% ����

�������� 2 ���� � ���������� 50% ����

�� ������ ������������ �� ����� ������������:



���� � ��� ���� �������, �� ������ ��� ���������� ��� �������� ������, ��������� - ��� ��� ���� ����� ��� ��-���� (on-line) �������:

Èùèòå áðèãàäó? Íóæíî ïîñòðîèòü èëè îòðåìîíòèðîâàòü? Äåëàåì ÂÑÅ êà÷åñòâåííî è áûñòðî. Áîëüøîé îïûò ðàáîò.
� 2001 - 2012 ������������ ������� ���: ������������� � ������ ��� ����
������� |������ |���� �������� |������� |���� |����� ����� |�������������� ������ |������ PNVTEAM |�������� |

.
���������� ����� � ������ ����������