Èùèòå áðèãàäó? Íóæíî ïîñòðîèòü èëè îòðåìîíòèðîâàòü? Äåëàåì ÂÑÅ êà÷åñòâåííî è áûñòðî. Áîëüøîé îïûò ðàáîò. Ðàáîòà, ýòî ðàçäåë, ãäå ðàçìåùåíû ôîòîãðàôèè, ÷åðòåæè, ýñêèçû, âèçóàëèçàöèè ðåàëüíûõ çàêàçîâ, êîòîðûå áûëè íàì ïîðó÷åíû. Ýòî íå âñå. Ïîëíûé ñïèñîê è áîëüøå ìàòåðèàëîâ åñòü ó íàøåãî óïðàâëÿþùåãî.



����:
�������

������

���� ��������

- �������
- �������������
- �����
- ������
- ������

�������

����

������ PNVTEAM

��������

������������ ����������

�������� �������� �����
�������������� ������������
�������� �������������
������������ �����

���������
������ ��� �������

���������� ������
����� ���������
��� ����

���������
�������

������������� ��������, �������, ������������������ ������

���������
��������� ���

������������� ���� �� �������, ��������� ��������, ��������,
����� 55-70��

���������
��� �� ��������� ����������

������������� ���� �� ������, ��������� ����������� �����

���������
������������� �����

������������� �����,
���� �� ������� ��� ������

���������


�� ����������:
��������� ��� |��������� ��� |��������� ��� |������������� �����, ���� |�����, �������� |������������� �������� |������������ |������, ������� |��������������, ������ |������� ������� |���������� ��� |����������� ��� |������������ ���������� |������������� ���������� |������ ������ |������� |

Translate this page


������ �����
������������ |������ |�������� |������ |������������� |���������������� ������ |������������� |���������� ������ |���������� ������������ |��������� |���������� |��������� |����������� ������ |������������� ���� |������������� ����� |������� ������� |������������ ������ ��� �������� |����� � ������������ |���������� ������� |������ ��������� |������������ �������� ������������ ��������� |������/������������� ��������� |����������� ����������� |��������� ������� |�������������� � ��������� ��������� ������� |������ ������� |����������� ���������� ���� |������������ � ������ �������� |�������� ����������� |������� ������ |������������� ����, �������� |����� ������ |������� �������� |������ |����������������� ��� |������ ��������������� |�������������� ��� ��������� |������ ���� |��� � ��������� |��������� ����������� |��������� ��� |������������ ������� |���� ������� ���������� |����� ��� �������� |������������ ������ |������� �������� |��������� ������� |������ �������� |������� ���������� � ��������� ������� ���� |������� ����������� |������� ���������� |������������ ������� |��������� ������� |������� ����������� |������� ������� |������� ���������� |���������� � �������� |������� ��������� |������ ������� |������� |��� VIP �������� |������������ |������ ��� ���� |������������� ��� ���� |�������������� |�������� |������ ��������� |���������� |����� ������ |

�� ����� �����!

������ ��� ����� ����� � ���������� ����� � ��������:

�� ������ �������� �� ��� ���� �������.

������� / ���� �������� / �������������
�������������
������ ��� ������

���� ����������� �����

(����� ���������� ���� �� ����� ������������ ������� pnvteam.com)

���������� ...

���������� ...

���������� ...

���������� ...

���������� ...

���������� ...

���������� ...

������������� ���� �� ���������

Ôàñàäíûå ðàáîòû, êðîâëÿ

�������� ������, ������


Ôàñàäíûå ðàáîòû, êðîâëÿ

�������� ������, ������


Ôàñàäíûå ðàáîòû, êðîâëÿ

�������� ������, ������


Ôàñàäíûå ðàáîòû, êðîâëÿ

�������� ������, ������


Âèçóàëèçàöèÿ ïðîåêòà ôàñàäà

������������ ������� ������


Âèçóàëèçàöèÿ ïðîåêòà ôàñàäà

������������ ������� ������


Âèçóàëèçàöèÿ ïðîåêòà ôàñàäà

������������ ������� ������


Âèçóàëèçàöèÿ ïðîåêòà ôàñàäà

������������ ������� ������


2 ýòàæà äîìà èç ãàçàáëîêà

2 ����� ���� �� ���������


2 ýòàæà äîìà èç ãàçàáëîêà

2 ����� ���� �� ���������


2 ýòàæà äîìà èç ãàçàáëîêà

2 ����� ���� �� ���������


Áàññåéí

�������


Ìîíîëèòíûå ïåðåêðûòèÿ â äîìå èç ãàçîáëîêà

���������� ���������� � ���� �� ���������


Ðèãåëü â ãàçàáëîêå

������ � ���������


Ðèãåëü â ãàçàáëîêå

������ � ���������


Ñòðîèòåëüñòâî 1 ýòàæà
������ ��� ��������

������������� 1 �����


Ñòðîèòåëüñòâî 1 ýòàæà

������������� 1 �����


Ñòðîèòåëüñòâî 1 ýòàæà

������������� 1 �����


Ïðîåêò ôàñàäà

������ ������


Ðàçðåç äîìà, ïðîåêò

������ ����, ������


2 ýòàæ ïðîåêò

2 ���� ������


1 ýòàæ ïðîåêò

1 ���� ������


     

���������� ...

������������� ���������� ����

Ôàñàä

�����


Ôàñàä

�����


Ãîòîâûé äîì

������� ���


Äîì ïîñòðîåí

��� ��������


Ïðîåêò äîìà
������������ �������

������ ����


Ïðîåêò äîìà
������������ �������

������ ����


Ïðîåêò äîìà
������������ �������

������ ����


Ïðîåêò äîìà
������������ �������

������ ����


   

������������� ����

Ôàñàä

�����


Ôàñàä

�����


Ôàñàä

 


�����


Ïëàí ñàóíû
� �������

���� �����


Ïëàí ñàóíû

���� �����


   

������������� ���� � ���������� ������

Ãîòîâûé äîì

������� ���


Ãîòîâûé äîì

������� ���


Ãîòîâûé äîì

������� ���


Ãîòîâûé äîì

������� ���


Ãîòîâûé äîì

������� ���


Ïîñòðîåííûé äîì

����������� ���


Ðàçðåç

������


Êðîâëÿ

������


Ôàñàä

�����


Ôàñàä

�����


Ôàñàä

�����


Ïëàí äîìà

���� ����


Ïëàí äîìà

���� ����


     

������������� ���������� ����

Ãîòîâíîñòü 100%

��������� ��� 2008 ����, ������� "��������", ��������� �� ��������� (������), ��������� �������, �������� � �������� ��������� ������ - �����. ���� ������ 2010 ���.


���������� 100%


Ãîòîâíîñòü 100%
��������� ���

���������� 100%


Äîì êàðêàñíûé

��� ���������


Ãîòîâûé äîì

������� ���


Ïîñòðîåííûé äîì

����������� ���


Ïîñòðîåííûé äîì

����������� ���


Ïîñòðîåííûé äîì

����������� ���


Ïîñòðîåííûé äîì

����������� ���


Ïëàí 2 äîìà

���� 2 ����


Ïëàí äîìà

���� ����


     

������������� ���������� ���� 2 �����

Ïîñòðîåííàÿ êîðîáêà

����������� �������


Âèçóàëèçàöèÿ ñ ôàñàäíûì êèðïè÷åì

������������ � �������� ��������


Âèçóàëèçàöèÿ

������������


Âèçóàëèçàöèÿ

������������


Âèçóàëèçàöèÿ

������������


Âèçóàëèçàöèÿ

������������


Ðàçðåç

������


Ôàñàä

�����


Ôàñàä

�����


Ïëàí 2 ýòàæ

���� 2 ����


Ïëàí 1 ýòàæ

���� 1 ����


Ïëàí öîêîëüíîãî ýòàæà

���� ���������� �����


Ãåíïëàí

�������


     

������������� ����

Êðîâëÿ

������


Ðàçðåç

������


Ñòàëî 2 ýòàæ

����� 2 ����


Ñòàëî 1 ýòàæ

����� 1 ����


Áûëî

����


Áûëî

����


Ïîñòðîåí 2 ýòàæ è ïðèñòðîåíî 50% äîìà

�������� 2 ���� � ���������� 50% ����


Ïîñòðîåí 2 ýòàæ è ïðèñòðîåíî 50% äîìà

�������� 2 ���� � ���������� 50% ����


Ïîñòðîåí 2 ýòàæ è ïðèñòðîåíî 50% äîìà

�������� 2 ���� � ���������� 50% ����


������������� ��������

Ïîñòðîåííûé äîì

����������� ���


Ïîñòðîåííûé äîì

����������� ���


Ïîñòðîåííûé äîì

����������� ���


Ïëàí 1 ýòàæ

���� 1 ����


Ïëàí 2 ýòàæ

���� 2 ����


Ôàñàä

�����


Ðàçðåç

������


Ãåíïëàí

�������


Êðîâëÿ

������


������������� ����������

Ïîñòðîåííûé äîì

����������� ���


Ïîñòðîåííûé äîì

����������� ���


Ïîñòðîåííûé äîì

����������� ���


Ïîñòðîåííûé äîì

����������� ���


Ïîñòðîåííûé äîì

����������� ���


Ïîñòðîåííûé äîì

����������� ���


Ïîñòðîåííûé äîì
������ � ������

����������� ���


Ïîñòðîåííûé äîì
������ ���, ����������� 2 ����

����������� ���


Ïîñòðîåííûé äîì
�������� ��� ��������� �������� �� �����������, ��� ��� ���������� ������� �������� ������ ��������.

����������� ���


Ïîñòðîåííûé äîì

����������� ���


Âèçóàëèçàöèÿ îñâåùåíèÿ

������������ ���������


Âèçóàëèçàöèÿ îñâåùåíèÿ

������������ ���������


Âèçóàëèçàöèÿ âñåãî êîìïëåêñà

������������ ����� ���������


Âèçóàëèçàöèÿ âñåãî êîìïëåêñà

������������ ����� ���������


Âèçóàëèçàöèÿ äîìà

������������ ����


Âèçóàëèçàöèÿ äîìà

������������ ����


Âèçóàëèçàöèÿ äîìà

������������ ����


Âèçóàëèçàöèÿ äîìà

������������ ����


Ãåíïëàí

�������


×åðòåæ áàññåéí

������ �������


3ä áàññåéíà

3� ��������


Ãåíïëàí

�������


×åðòåæ ñòðîïèëüíîé ñèñòåìû

������ ����������� �������


Ðàçðåç

������


Ïëàí 2 ýòàæ

���� 2 ����


Ïëàí 1 ýòàæ

���� 1 ����


   

������������� �������� ����

Æèëîé äîì

����� ���


×åðíîçåì

��������


Ïîñòðîåííûé äîì

����������� ���


Ïîñòðîåííûé äîìà

����������� ����


3ä ìîäåëü äîìà
������������ ����

3� ������ ����


3ä ìîäåëü äîìà
������������ ����

3� ������ ����


3ä ìîäåëü äîìà
������������ ����

3� ������ ����


3ä ìîäåëü äîìà
������������ ����

3� ������ ����


3ä ìîäåëü çàáîðà
������������ ������

3� ������ ������


3ä ëåñòíèöû â äîìå
������������ ��������

3� �������� � ����


Êðîâëÿ ×åðòåæ
����������� �������

������ ������


×åðòåæ ðàçðåçà äîìà
������ ����

������ ������� ����


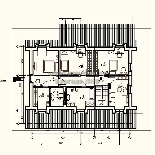
Ïëàí äîìà
���� 1 �����

���� ����


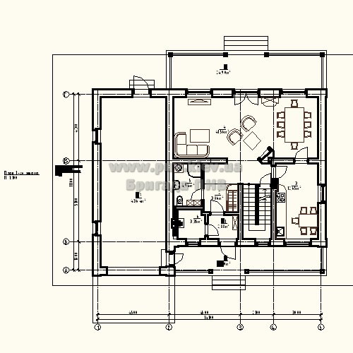
Ïëàí äîìà

���� 2 �����


���� ����


Ôàñàä
������ ������

�����


Ôàñàä
������ ������

�����


Ôàñàä
������ ������

�����


Ôàñàä
������ ������

�����




���� � ��� ���� �������, �� ������ ��� ���������� ��� �������� ������, ��������� - ��� ��� ���� ����� ��� ��-���� (on-line) �������:

Èùèòå áðèãàäó? Íóæíî ïîñòðîèòü èëè îòðåìîíòèðîâàòü? Äåëàåì ÂÑÅ êà÷åñòâåííî è áûñòðî. Áîëüøîé îïûò ðàáîò.
� 2001 - 2012 ������������ ������� ���: ������������� � ������ ��� ����
������� |������ |���� �������� |������� |���� |����� ����� |�������������� ������ |������ PNVTEAM |�������� |

.
���������� ����� � ������ ����������